Wiring Diagram 1998 Jeep Grand Cherokee I Have A 1998 Cherokee Sport,not The Grand,my Dome Lights,visor Lights
Cherokee jeep window 1998 passenger rear down. Diagram colors factory need asap unit head help location. I have a 1998 jeep cherokee and the rear passenger window will go down
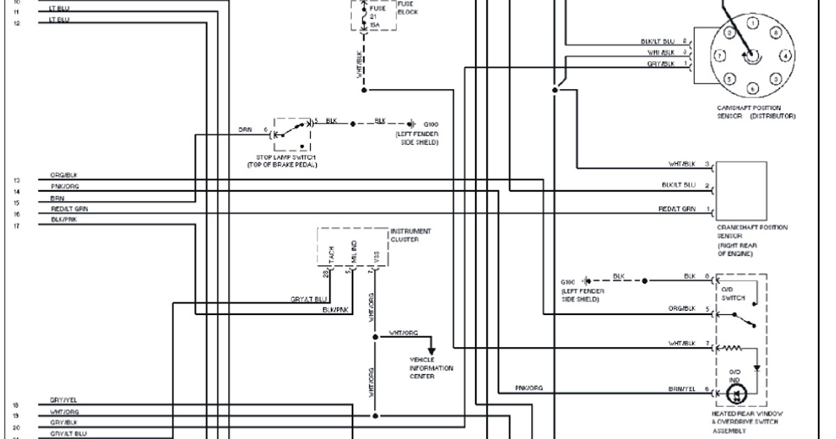
wiring diagram 1998 jeep grand cherokee
Download PDF
Repair guides


Repair guides. 2006 jeep grand cherokee wiring diagram images. Jeep cherokee wiring diagram xj diagrams grand 1993 wrangler yj 1988 ru manual schematron wagoneer. Jeep vacuum cherokee manual 1993 xj engine control yj 1995 idling vehicle ru
33 2004 Jeep Grand Cherokee Brake Line Diagram - Wiring Diagram List
L - WIRING DIAGRAMS :: 1993 :: Jeep Cherokee (XJ) :: Jeep Cherokee
1995 Jeep Grand Cherokee L - Wiring Diagram | Schematic Wiring Diagrams
WIRING DIAGRAMS :: 1993 :: Jeep Cherokee (XJ) :: Jeep Cherokee
27 1995 Jeep Cherokee Wiring Diagram - Wire Diagram Source Information

Tidak ada komentar:
Posting Komentar